新築一戸建て 福山市山手町5丁目①号棟
所在地
福山市山手町5丁目①号棟
2,280万円
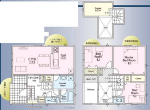
29.40坪
3LDK
★耐震+制震の家 ★住宅性能評価取得物件 ★①号棟の情報です
★山手小学校まで徒歩12分、毎日の通学も安心ですね♪
・ザグザグ 山手店まで400m(徒歩6分)
・ハローズ 山手店まで650m(徒歩9分)
・ファミリーマート福山山手町店まで400m(徒歩5分)
物件概要
- 交通
-
福塩線 備後本庄駅 まで 徒歩16分
- 接道状況
-
南西側 私道6m 間口約7.2m
北東側 私道4m 間口約9.1m - 土地面積
- 公簿 165.16㎡ (49.96坪)
- 建物面積
- 97.20㎡ (29.40坪)
- 築年数
- 2025年 (令和7) 5月
- 建ぺい率
- 60%
- 容積率
- 200%
- 土地権利
- 所有権
- 構造および階数
- 木造 地上2階建
- 小学校区
- 山手 ( 889m )
- 中学校区
- 城西 ( 1884m )
- 私道負担
- 有 306.88 ㎡
- 地目
- 宅地
- 現況
- 引渡時期
- 相談
- 駐車場
- 有 2台
- 上水道
- 公共
- 下水道
- 公共
- ガス
- 都市計画
- 市街化区域
- 用途地域
- 準工業
- 建築確認番号
- 第R06SHC127579号
- 設備・条件
- オール電化、システムキッチン、カウンターキッチン、IHクッキングヒーター、シャンプードレッサー、浴室乾燥機、洗浄便座、複層ガラス、追い焚き、駐車場2台分、床下収納、エコキュート、トイレ2箇所、浄水器、人感センサーライト、各部屋収納スペース、火災報知器
- 備考
-
★耐震+制震の家 ★住宅性能評価取得物件
★山手小学校まで徒歩12分、毎日の通学も安心ですね♪ - 取引態様
- 仲介

