新築一戸建て 福山市草戸町4丁目
所在地
福山市草戸町4丁目
2,750万円
25.52坪
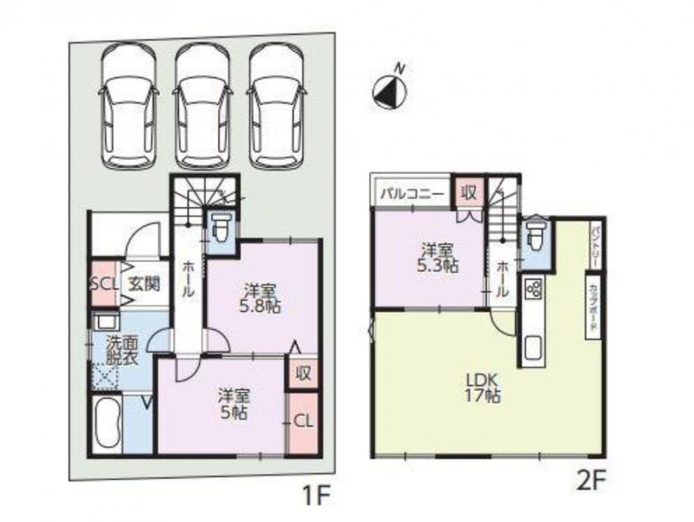
3LDK
★2026年1月完成新築一戸建て♪
★辺交通量少なめです ★3LDK
★うれしい駐車場3台並列可能(^^)/
★2階リビングなので視線を気にせずくつろげる、開放的な空間
・野上保育所まで660m(徒歩9分)
・福山草戸郵便局まで327m(徒歩5分)
・フレスタ草戸店まで980m(徒歩13分)
・ウォンツ福山野上店まで887m(徒歩12分)
物件概要
- 交通
-
山陽本線 福山駅 まで 徒歩29分
- 接道状況
- 土地面積
- 実測 97.95㎡ (29.62坪)
- 建物面積
- 84.37㎡ (25.52坪)
- 築年数
- 2026年 (令和8) 1月
- 建ぺい率
- 60%
- 容積率
- 160%
- 土地権利
- 所有権
- 構造および階数
- 木造
- 小学校区
- 光 ( 250m )
- 中学校区
- 鷹取 ( 614m )
- 私道負担
- 地目
- 宅地
- 現況
- 引渡時期
- 駐車場
- 3台
- 上水道
- 公共
- 下水道
- 公共
- ガス
- プロパン個別
- 都市計画
- 用途地域
- 1種住居
- 建築確認番号
- 第2025東部福市確認0176号
- 設備・条件
- システムキッチン、カウンターキッチン、食器洗浄乾燥機、IHクッキングヒーター、洗浄便座、追い焚き、モニタ付インターホン、駐車場3台分、トイレ2箇所、全居室収納、照明器具、エアコン
- 備考
-
★2026年1月完成新築一戸建て♪
★辺交通量少なめです ★3LDK
★うれしい駐車場3台並列可能(^^)/
★2階リビングなので視線を気にせずくつろげる、開放的な空間 - 取引態様
- 仲介

