新築一戸建て 福山市手城町3丁目
所在地
福山市手城町3丁目
2,750万円
24.76坪
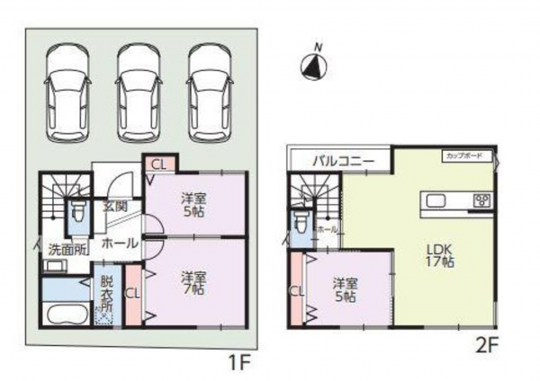
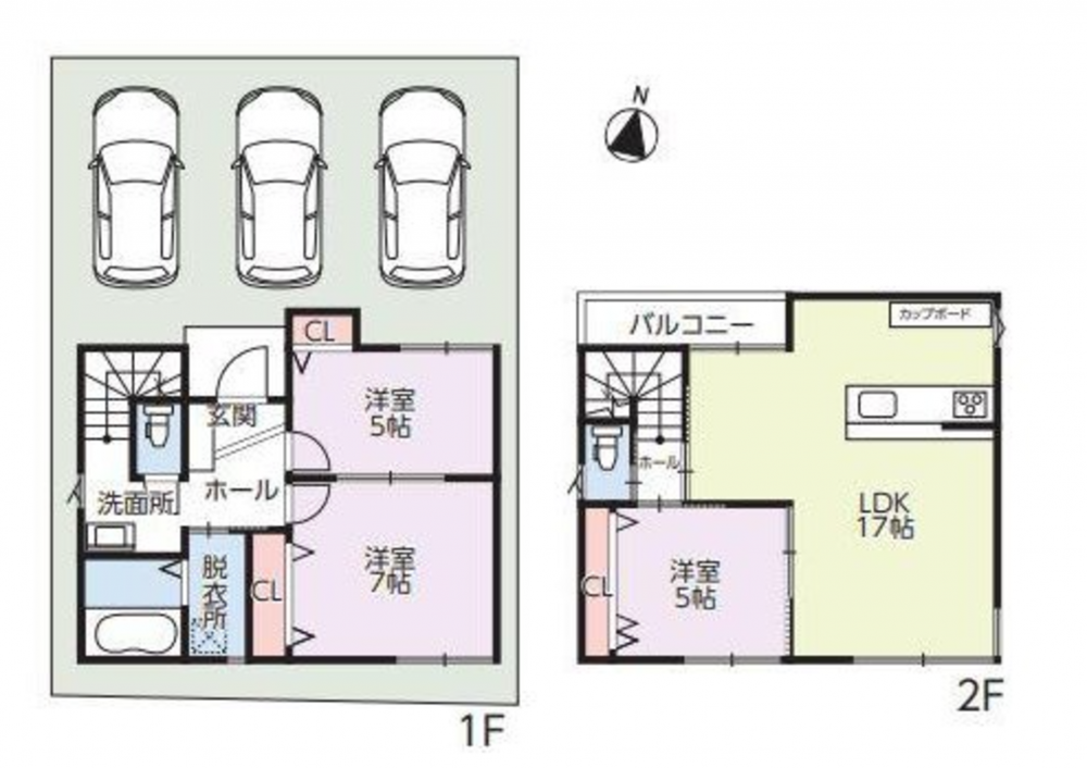
3LDK
★2025年12月完成予定の新築一戸建て
★2階リビングです♪ ★駐車3台可能 ★年内引渡可
★手城小学校・一ツ橋中学校区でお探しの方におすすめ
・手城こども園まで531m(徒歩7分)
・ハローズ手城店まで284m(徒歩4分)
・福山手城六郵便局まで443m(徒歩6分)
・スーパードラッグひまわり手城店まで375m(徒歩5分)
物件概要
- 交通
-
山陽本線 東福山駅 まで 徒歩29分
- 接道状況
- 土地面積
- 実測 103.51㎡ (31.31坪)
- 建物面積
- 81.87㎡ (24.76坪)
- 築年数
- 2025年 (令和7) 12月 完成予定
- 建ぺい率
- 60%
- 容積率
- 200%
- 土地権利
- 所有権
- 構造および階数
- 木造
- 小学校区
- 手城 ( 782m )
- 中学校区
- 一ツ橋 ( 1014m )
- 私道負担
- 地目
- 現況
- 建築中
- 引渡時期
- 駐車場
- 3台
- 上水道
- 公共
- 下水道
- 公共
- ガス
- プロパン個別
- 都市計画
- 用途地域
- 1種住居
- 建築確認番号
- 第2025東部福市確認0153号
- 設備・条件
- システムキッチン、カウンターキッチン、IHクッキングヒーター、食器洗浄乾燥機、洗浄便座、追い焚き、駐車場3台分、トイレ2箇所、全居室収納、前道6m以上、シューズインクローゼット、照明器具、エアコン
- 備考
-
★2025年12月完成予定の新築一戸建て
★2階リビングです♪ ★駐車3台可能 ★年内引渡可
★手城小学校・一ツ橋中学校区でお探しの方におすすめ - 取引態様
- 仲介

