新築一戸建て 福山市新涯町4丁目
所在地
福山市新涯町4丁目
4,980万円
24.54坪
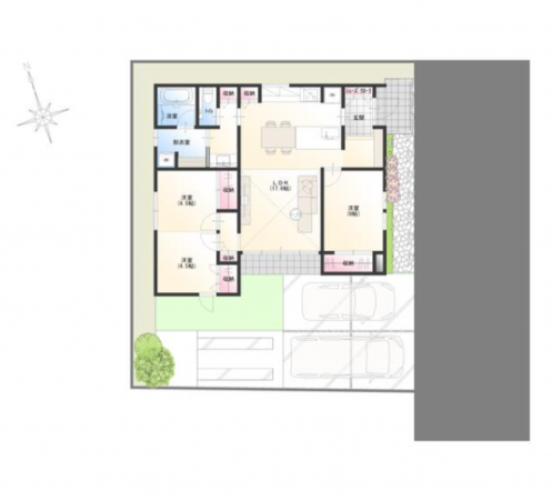
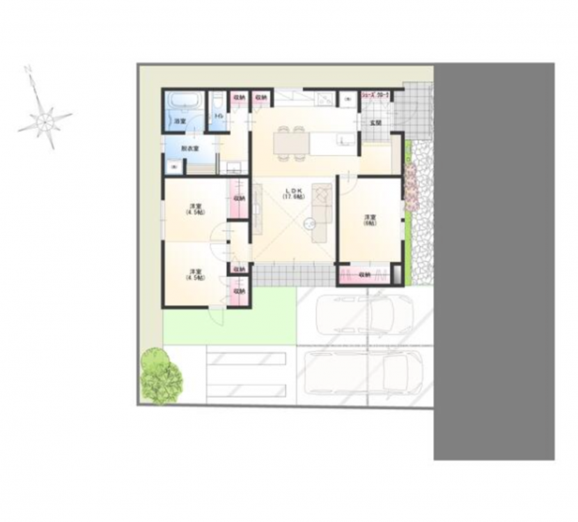
2LDK
★新築建売物件 ★3号棟
★2026年9月完了予定
★ワンフロアで生活が完結する平屋の住まい
★リビングを中心としたプランニングで自然とご家族との繋がりを感じられる住まいです♪
・セブンイレブン福山新涯大橋西店まで600m(徒歩7分)
・ドラックストアコスモス福山新涯店まで750m(車2分)
・ローソン福山新涯町5丁目店まで650m(車2分)
物件概要
- 交通
-
山陽本線 福山駅 バス停三の川バス停 まで 徒歩7分
- 接道状況
- 東側 公道5.0m 間口約14.6m
- 土地面積
- 179.50㎡ (54.29坪)
- 建物面積
- 81.15㎡ (24.54坪)
- 築年数
- 2026年 (令和8) 9月
- 建ぺい率
- 60%
- 容積率
- 200%
- 土地権利
- 所有権
- 構造および階数
- 小学校区
- 新涯 ( 1000m )
- 中学校区
- 誠之 ( 500m )
- 私道負担
- なし
- 地目
- 宅地
- 現況
- 引渡時期
- 駐車場
- 上水道
- 公共
- 下水道
- 公共
- ガス
- 都市計画
- 市街化区域
- 用途地域
- 1種住居
- 建築確認番号
- 第ERI-26008366号
- 設備・条件
- システムキッチン、食器洗浄乾燥機、IHクッキングヒーター、オール電化、浴室乾燥機、追い焚き、複層ガラス、モニタ付インターホン、駐車場2台分、トイレ2箇所、、分譲地内、整形地、平坦地、制震構造、耐震構造、住宅性能評価、設計住宅性能評価取得、長期優良住宅、高気密高断熱住宅、天井高2.5M以上、平屋、エアコン2台以上、太陽光発電システム、各室収納スペース、照明器具、バストイレ別、フローリング、浄水器、火災警報器(報知機)、浴室暖房、独立洗面台、LDK18帖以上、対面キッチン、外壁サイディング、間接照明、ダウンライト、スマートキー
- 備考
-
★新築建売物件 ★3号棟
★2026年9月完了予定
★ワンフロアで生活が完結する平屋の住まい
★リビングを中心としたプランニングで自然とご家族との繋がりを感じられる住まいです♪ - 取引態様
- 仲介

