新築一戸建て 福山市大門町3丁目②号地
所在地
福山市大門町3丁目②号地
3,430万円
35.02坪
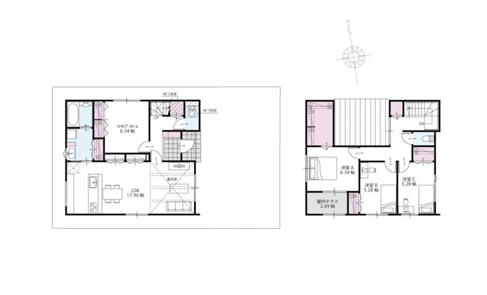
4SLDK
★4SLDK ★建築中
★太陽光パネル付 ★②号地
★野々浜小学校・大門中学校区でお探しの方におすすめ!
・福山野々浜郵便局まで290m(徒歩4分)
・ののはまこどもえんまで230m(徒歩3分)
・ハローズ 大門店まで800m(徒歩11分)
物件概要
- 交通
-
山陽本線 大門駅 まで 徒歩18分
- 接道状況
- 土地面積
- 139.90㎡ (42.31坪)
- 建物面積
- 115.80㎡ (35.02坪)
- 築年数
- 2026年 (令和8) 完成予定
- 建ぺい率
- 60%
- 容積率
- 200%
- 土地権利
- 構造および階数
- 小学校区
- 野々浜 ( 800〜900m )
- 中学校区
- 大門 ( 1500〜1600m )
- 私道負担
- 地目
- 現況
- 建築中
- 引渡時期
- 駐車場
- 上水道
- 公共
- 下水道
- 公共
- ガス
- 都市計画
- 市街化区域
- 用途地域
- 1種住居
- 設備・条件
- 側溝、オール電化、システムキッチン、IHクッキングヒーター、食器洗浄乾燥機、シャンプードレッサー、浴室乾燥機、モニタ付インターホン、洗浄便座、ウォークインクローゼット、複層ガラス、駐車場2台分、トイレ2箇所、太陽光発電システム、全居室収納、パントリー、シューズインクローク、 浄水器、スマートキー、TVアンテナ、外構
- 備考
-
★大門町3丁目の分譲住宅♪ ★商業施設が近く便利立地
★野々浜小学校・大門中学校区でお探しの方におすすめ!
- 取引態様
- 仲介

